Отдел продаж: г. Киев, Индустриальный переулок, 2

Отдел продаж:
(044) +38098 6490202

Заказать консультацию
Рус Укр
  • О комплексе
    • План застройки
    • Расположение
    • Инфраструктура
    • Технологии строительства
    • Галерея объекта
    • Документация
  • Квартиры
    • 1-комнатные
    • 2-комнатные
    • 3-комнатные
  • Паркинг
  • Продажа
  • Строительство
  • Новости
  • Контакты

Выбранные квартиры проданы. Выберите из рекомендуемых ниже.

вернуться к списку

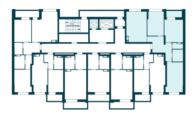
ЖК : планировка 1-комнатной квартиры, 48.01 м2, тип 1.16.1

Индустриальный переулок, 2
Схема этажа
Дом
1
Секция
1
Общая площадь
48,01 м2
Жилая площадь
16,73 м2
Кухня
14,19 м2
Версия для печати
Заказать консультацию
Оставьте заявку

и получите подробную информацию о проекте

Если у вас не Украинский оператор мобильной связи, пожалуйста, заполните другую форму обратной связи здесь
Контакты

Приглашаем Вас в наш отдел продаж

Отдел продаж:
м. Київ, Індустріальний провулок, 2
тел: (044) +38098 6490202
[email protected]
График работы:
Понедельник - Пятница — 09:00 до 18:00
Суббота — выходной день
Воскресенье — выходной день
Выберите тип квартиры
Дом 1
Секция 1
Секция 2
Секция 3
Секция 4
Секция 5
Количество комнат
Общая площадь, м2
Жилая площадь, м2
Этаж
Цена, грн/м2
Акционная цена, грн/м2
Общая стоимость, грн
Тип
1-комнатные
75,60
33,43
16-17
38 400,00
-
2 874 009,60
Тип 1.16.2
48,01
16,73
16-17
46 050,00
-
2 188 775,90
Тип 1.16.1
36,25
10,40
6-15
56 000,00
-
2 009 700,00
Тип 1.8
Количество комнат
Общая площадь, м2
Жилая площадь, м2
Этаж
Цена, грн/м2
Акционная цена, грн/м2
Общая стоимость, грн
Тип
1-комнатные
33,48
18,69
6-17
46 100,00
-
1 527 993,72
Тип 1.7
2-комнатные 2-уровневые
80,12
24,2
18-19
44 500,00
-
3 565 340,00
Тип 2.5
102,75
24,7
18-19
42 000,00
-
4 315 500,00
Тип 2.3
Количество комнат
Общая площадь, м2
Жилая площадь, м2
Этаж
Цена, грн/м2
Акционная цена, грн/м2
Общая стоимость, грн
Тип
1-комнатные
44,28
12,88
13-20
46 050,00
-
2 018 703,06
Тип 1.16
2-комнатные
71,24
26,54
13-20
45 757,00
-
3 227 131,39
Тип 2.2
Количество комнат
Общая площадь, м2
Жилая площадь, м2
Этаж
Цена, грн/м2
Акционная цена, грн/м2
Общая стоимость, грн
Тип
1-комнатные
48,65
16,96
2
41 704,00
-
1 978 177,11
Тип 1.7
38,83
15,13
2
44 998,00
-
1 703 590,53
Тип 1.8
46,50
14,11
3-5
43 371,00
-
1 966 332,48
Тип 1.6
35,73
11,92
13
47 473,20
-
1 653 812,00
Тип 1.2
46,50
14,11
6-16
44 652,00
-
2 024 410,05
Тип 1.6
35,20
11,88
17-25
49 909,00
-
1 712 876,70
Тип 1.9
40,04
11,88
17-25
46 730,00
-
1 824 292,47
Тип 1.12
46,03
14,11
17-25
45 166,00
-
2 027 016,20
Тип 1.14
48,12
16,95
17-25
43 884,00
-
2 058 905,62
Тип 1.15
2-комнатные
59,41
26,57
6-16
46 282,00
-
2 680 873,27
Тип 2.2
55,45
24,02
17-25
48 372,00
-
2 615 171,71
Тип 2.3
58,76
26,52
17-25
46 923,00
-
2 688 265,29
Тип 2.4
Количество комнат
Общая площадь, м2
Жилая площадь, м2
Этаж
Цена, грн/м2
Акционная цена, грн/м2
Общая стоимость, грн
Тип
1-комнатные
35,80
11,53
2
46 576,00
-
1 634 072,38
Тип 1.1
36,04
12,6
3-5
46 832,00
-
1 645 629,64
Тип 1.3
39,79
15,05
3-5
45 166,00
-
1 752 226,26
Тип 1.4
36,57
12,74
6-16
46 319,00
-
1 651 538,50
Тип 1.2
49,78
17,11
6-16
41 064,00
-
1 993 061,77
Тип 1.5
35,51
12,6
17-25
49 525,00
-
1 714 666,75
Тип 1.11
49,33
17,1
17-25
44 012,00
-
2 116 834,16
Тип 1.12
37,94
11,32
24-24
43 226,00
-
1 639 994,44
Тип 1.15
39,62
15,16
18-25
47 858,00
-
1 848 730,61
Тип 1.16
2-комнатные
58,97
27,34
3-5
45 550,00
-
2 618 931,41
Тип 2.1
56,14
26,34
6-16
45 805,00
-
2 507 205,10
Тип 2.2
55,56
26,25
17-25
46 320,00
-
2 509 200,72
Тип 2.4
Выберите тип квартиры
Дом 1
Секция 1
Секция 2
Секция 3
Секция 4
Секция 5
Акционная рассрочка недоступна для этой секции

Акционная рассрочка недоступна для этой секции

Акционная рассрочка недоступна для этой секции

Акционная рассрочка недоступна для этой секции

Акционная рассрочка недоступна для этой секции

Акционная рассрочка недоступна для этой секции

Акционная рассрочка недоступна для этой секции

Акционная рассрочка недоступна для этой секции

Акционная рассрочка недоступна для этой секции

Акционная рассрочка недоступна для этой секции

1-комнатные
1-комнатные
2-комнатные
2-комнатные
3-комнатные
3-комнатные
Главная страницаКвартирыПланировка 1-комнатной квартиры 1.16.1
Отдел продаж:
02002 г. Киев, Индустриальный переулок, 2
тел: (044) +38098 6490202
[email protected]
Copyright © 2025 Жилой комплекс GENESIS
Copyright ©2025
  • О комплексе
    • План застройки
    • Расположение
    • Инфраструктура
    • Технологии строительства
    • Галерея объекта
    • Документация
  • Квартиры
    • 1-комнатные
    • 2-комнатные
    • 3-комнатные
  • Паркинг
  • Продажа
  • Строительство
  • Новости
  • Контакты
Перезвоните мне